Wohnobjekt

Moderne 4.5-Zimmer-Neubauwohnung in Lachen SZ

CHF 4'300

 | 

97 m²

 | 

4.5 Zimmer

Ort & Lage

Zürcherstrasse 30, 8853 Lachen SZ

Moderne 4.5-Zimmer-Neubauwohnung in Lachen SZ - Karte

Verfügbarkeit

Verfügbar ab:
1. Juli 2026

Kosten

Nettomiete:
CHF 4'050
Nebenkosten:
CHF 250
Mietpreis:
CHF 4'300

Angaben

Objektkategorie
Miete
Objektreferenz
8c1bcf93-e07c-4af0-aceb-b0d63deeba2d
Adresse
Zürcherstrasse 30
PLZ/Ort
8853 Lachen SZ
Region
March
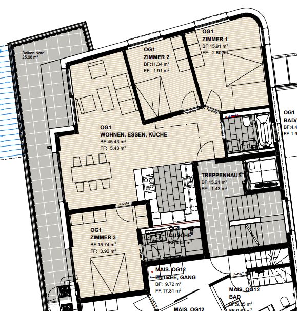
Wohnfläche
97 m²
Anzahl Zimmer
4.5
Etage
1
Baujahr
2026

Merkmale und Ausstattung

Balkon
Lift
Schöne Aussicht
Parkplatz
Kinderfreundlich
Rollstuhlgängig
Minergie

Beschreibung

In attraktiver Lage in Lachen SZ vermieten wir diese exklusive und hochwertig ausgebaute 4.5-Zimmer-Neubauwohnung mit traumhafter Seesicht.
Die Wohnung überzeugt durch eine durchdachte Raumaufteilung sowie modernste Ausstattung und bietet höchsten Wohnkomfort.
Highlights der Wohnung:
Helle Wohnräume mit edlem Parkettboden
Grosszügiger, 25 m² gedeckter Balkon mit wunderschöner Seesicht inkl. Festwasseranschluss
Moderne Küche mit Granitarbeitsfläche
Induktionsherd
Backofen, Steamer & Wärmeschublade
Dunstabzug mit Plasmafilter
Schwellenlose Dusche im stilvollen Badezimmer
Eigene Waschmaschine und Tumbler in der Wohnung
Komfortable Fussbodenheizung – individuell pro Zimmer über Wohnungsautomation steuerbar
Kontrollierte Wohnungslüftung für optimales Raumklima
Hausautomation inkl. Videogegensprechanlage bequem via Tablet oder Handy steuerbar
Geschlossener Keller im Erdgeschoss 9.7m2
Liegenschaft:
2 Aussenparkplätze im Mietpreis inbegriffen
Gartensitzplatz zur allgemeinen Benutzung
Neubau mit Lift
Vorbereitung für Elektroladestation (Nachrüstung möglich)
Lage:
Die Wohnung befindet sich in Lachen SZ in attraktiver Wohnlage mit Nähe zum Zürichsee sowie zu Einkaufsmöglichkeiten, öffentlichen Verkehrsmitteln und Naherholungsgebieten.
Besichtigung:
Haben wir Ihr Interesse geweckt? Die Wohnung in noch in der Fertigstellungsphase und der Innenausbau schreitet in schnellen Schritten voran. Machen Sie sich einen Eindruck vor Ort!
Wir freuen uns auf Ihre Kontaktaufnahme.

Kontakt

Christa Kuster
  • Christa Kuster
  • gibt Ihnen gerne Auskunft.
  • Nummer Anzeigen

Auch inseriert auf:

homegate.ch