Wohnobjekt

Traumhafte Wohnung im Herzen der Altstadt!

CHF 2'900

 | 

146 m²

 | 

4.5 Zimmer

Ort & Lage

Rathausstrasse 59, 4410 Liestal

Traumhafte Wohnung im Herzen der Altstadt! - Karte

Verfügbarkeit

Verfügbar ab:
1. Juli 2026

Kosten

Nettomiete:
CHF 2'550
Nebenkosten:
CHF 350
Mietpreis:
CHF 2'900

Angaben

Objektkategorie
Miete
Objektreferenz
7447b75c-4ab2-4906-b970-9344141c8767
Adresse
Rathausstrasse 59
PLZ/Ort
4410 Liestal
Region
Liestal
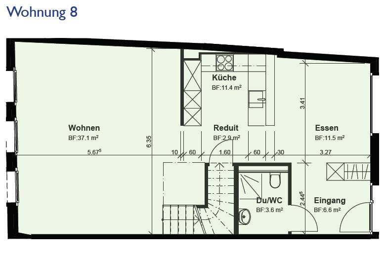
Wohnfläche
146 m²
Anzahl Zimmer
4.5
Etage
3

Merkmale und Ausstattung

Kabelfernsehen
Schöne Aussicht
Kinderfreundlich

Beschreibung

Per 01.07.2026 vermieten wir diese moderne, grosse und schöne 4.5 Maisonette-Wohnung mit Terrasse mitten in der Innenstadt von Liestal. Die Wohnung verfügt über:- Moderne, helle Küche mit Geschirrspülmaschine, Steamer, Backofen und Glaskeramik- Parkettböden in den Zimmern- Einbauschrank für Garderobe- Modernes Bad mit Dusche - Modernes Bad mit Badewanne und Doppellavabo- Grosses helles Wohn- und Esszimmer - Kontrollierte Wohnungslüftung- Terrasse mit Weitblick- Lift- Keller- Estrich- Veloabstellplatz- Waschmaschine und Tumbler in der WohnungDas Einkaufscenter Bücheli sowie weitere Einkaufsmöglichkeiten liegen in unmittelbarer Nähe.Wir freuen uns auf Ihre Kontaktaufnahme!

Kontakt

Wincasa AG
  • Wincasa AG
  • Wincasa AG
  • gibt Ihnen gerne Auskunft.
  • Nummer Anzeigen

Auch inseriert auf:

homegate.ch